福島ハウジング株式会社 福島ハウジング株式会社
閉じる
寄居貸店舗

事業用賃貸

寄居貸店舗

新築物件☆店舗・事務所その他相談

賃料
220,000
共益費/管理費
0
  • 所在地

    埼玉県大里郡寄居町寄居573-1

  • 交通

    東武東上線「寄居駅」より約550m 徒歩7分

  • 専有面積

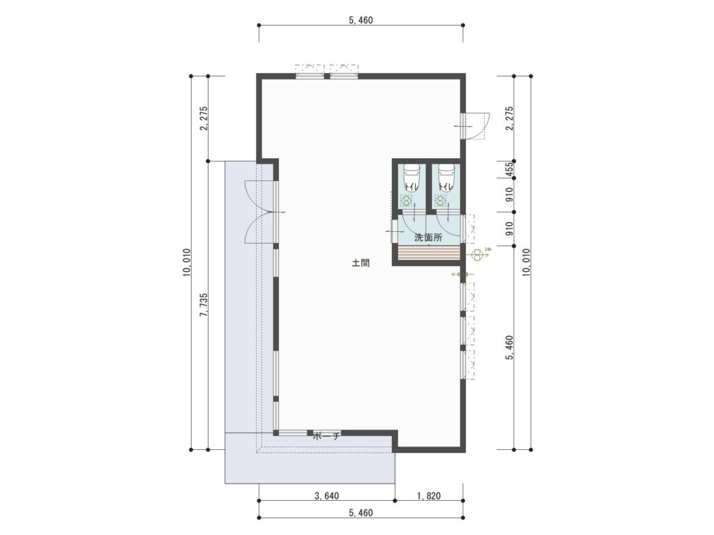
    49.69㎡(15坪)

  • 敷地面積

    161.98㎡(49坪)

  • 駐車場代

    0円/1台

新築物件☆交通量が多く県道に面している立地です!

寄居駅より徒歩7分。周辺には商業施設があり交通量も多く、大通りに面している立地となっています。屋内はスケルトンになっているので、お客様でご自由にアレンジができます♪
事務所・店舗・その他飲食も相談可能です!駐車場は店舗前に2台分駐車可能となっています。

ROOM

ACCESS

〒369-1203 埼玉県大里郡寄居町寄居573-1

(カーナビ住所 大里郡寄居町寄居573-1)

LOCATION

セブンイレブン123m(徒歩2分)
ベルク 260m(徒歩4分)
ダイソー260m(徒歩4分)
マツモトキヨシ260m(徒歩4分)

※掲載の徒歩分数は80m、自転車分数は250m、車分数は400mを1分として算出した概算時間です。

寄居駅
550m(徒歩7分 車2分)

DETAIL

  • 物件名 寄居貸店舗
    所在地 埼玉県大里郡寄居町寄居573-1
    交通 東武東上線「寄居駅」より約550m 徒歩7分
    賃料 220,000円
    共益費/管理費 0円
    駐車場代 0円/1台
    保証金 3ヶ月分
    礼金 1ヶ月
    更新料 新賃料1ヶ月分
    更新手数料 新賃料1/2ヶ月分+税
    契約期間 3年
    仲介料 1ヶ月分
    賠償保険 19,000円
    賃貸保証 初回料金月額総賃料の100%
  • 地目 宅地
    地勢 -
    用途地域 商業地域
    建ぺい率 -
    容積率 -
    用途 店舗
    築年数 新築
    敷地面積 161.98㎡(49坪)
    専有面積 49.69㎡(15坪)
    間取り -
    構造・規模 木造平屋
    接道 東西公道
    現況 スケルトン
    入居可能日 相談
    取引形態 媒介
    備考 自治会費:加入要、自治会の指定による
    賠償保険:用途により金額に変動がございます
立地・仕様・設備・その他
駐車場:店舗前2台

CONTACT

お気軽にお問い合わせください。