福島ハウジング株式会社 福島ハウジング株式会社
閉じる
松本貸家

居住用賃貸

松本貸家

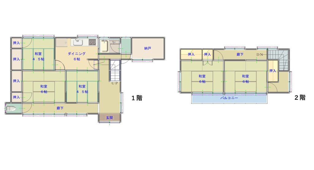
5DK部屋数の多い戸建住宅

賃料
50,000
共益費/管理費
0
  • 所在地

    大里郡寄居町寄居740-3

  • 交通

    東武東上線「玉淀駅」より350m(徒歩5分)

  • 専有面積

    99.5㎡(30.09坪)

  • 駐車場代

    0円/1台

玉淀駅より徒歩5分の戸建て物件です

5DKの2階建戸建て物件。押し入れが多くご家族の荷物も問題なく収納出来ます!

ROOM

ACCESS

〒369-1203 大里郡寄居町寄居740-3

(カーナビ住所 大里郡寄居町寄居740-3)

LOCATION

セブンイレブン1400m(徒歩18分)
ゲオ1600m(徒歩20分)
ヤオコー 1400m(徒歩18分)
寄居小学校1700m(徒歩22分)
寄居中学校1900m(徒歩23分)

※掲載の徒歩分数は80m、自転車分数は250m、車分数は400mを1分として算出した概算時間です。

ベルク
800m(徒歩10分)

マツモトキヨシ
800m(徒歩10分)

DETAIL

  • 物件名 松本貸家
    所在地 大里郡寄居町寄居740-3
    交通 東武東上線「玉淀駅」より350m(徒歩5分)
    賃料 50,000円
    共益費/管理費 0円
    駐車場代 0円/1台
    敷金 1ヶ月
    礼金 無料
    更新料 新賃料1ヶ月分
    更新手数料 新賃料1/2ヶ月分+税
    契約期間 2年
    仲介料 1ヶ月分+税
    賠償保険 15,000円
    賃貸保証 25,000円
  • 用途 居住用
    築年数 昭和42年築(1階)、昭和57年築(2階)
    専有面積 99.5㎡(30.09坪)
    間取り 5DK
    構造・規模 木造2階建て
    現況 空室
    入居可能日 相談
    取引形態 媒介
    備考 駐車場は近隣の月極駐車場をご案内します。
立地・その他条件

コンビニ、スーパー近く

公園近く

南向き

2階以上

最上階

角部屋

仕様・設備

全室洋室

和室

洗面所独立

バス・トイレ別

浴室窓あり

バルコニー

専用庭

室内洗濯機置場

追い炊風呂

暖房便座

ウォシュレット

二重サッシ

照明付

エアコン付

駐輪場、バイク置き場

収納スペース

シューズボックス

ウォークインクローゼット

床下収納

小屋裏収納・ロフト

セキュリティ

モニター付きインターホン

オートロック

雨戸・シャッター

その他

バリアフリー

ペット相談可

CONTACT

お気軽にお問い合わせください。